Parçay-Meslay (37)
Tours Métropole Val de Loire et Ville de Parçay-Meslay
2.011 m²
4,5 M €
Livré en septembre 2025
Equipe : Oyapock architectes, mandataire (suivi études : Rémy Raffourt) / Facéa, TCE / Venathec, acoustique / Atelier Altern, paysagiste /// Stramen, AMO paille / SARIM, pilotage
Entreprises : UTB / Briault / SMAC / ACS / Ararat / Champigny-Segelles / Sportingsols / 3MPaint / Nouansport / Brunet / Eiffage / Artisans paysagistes
Photographies : Charles Bouchaïb
A l’image de la double échelle d’utilisation de ce nouveau complexe sportif, communale et régionale, le projet allie un statut d’équipement structurant placé en entrée de bourg, et la préservation d’un caractère terrien, dans un site agricole.
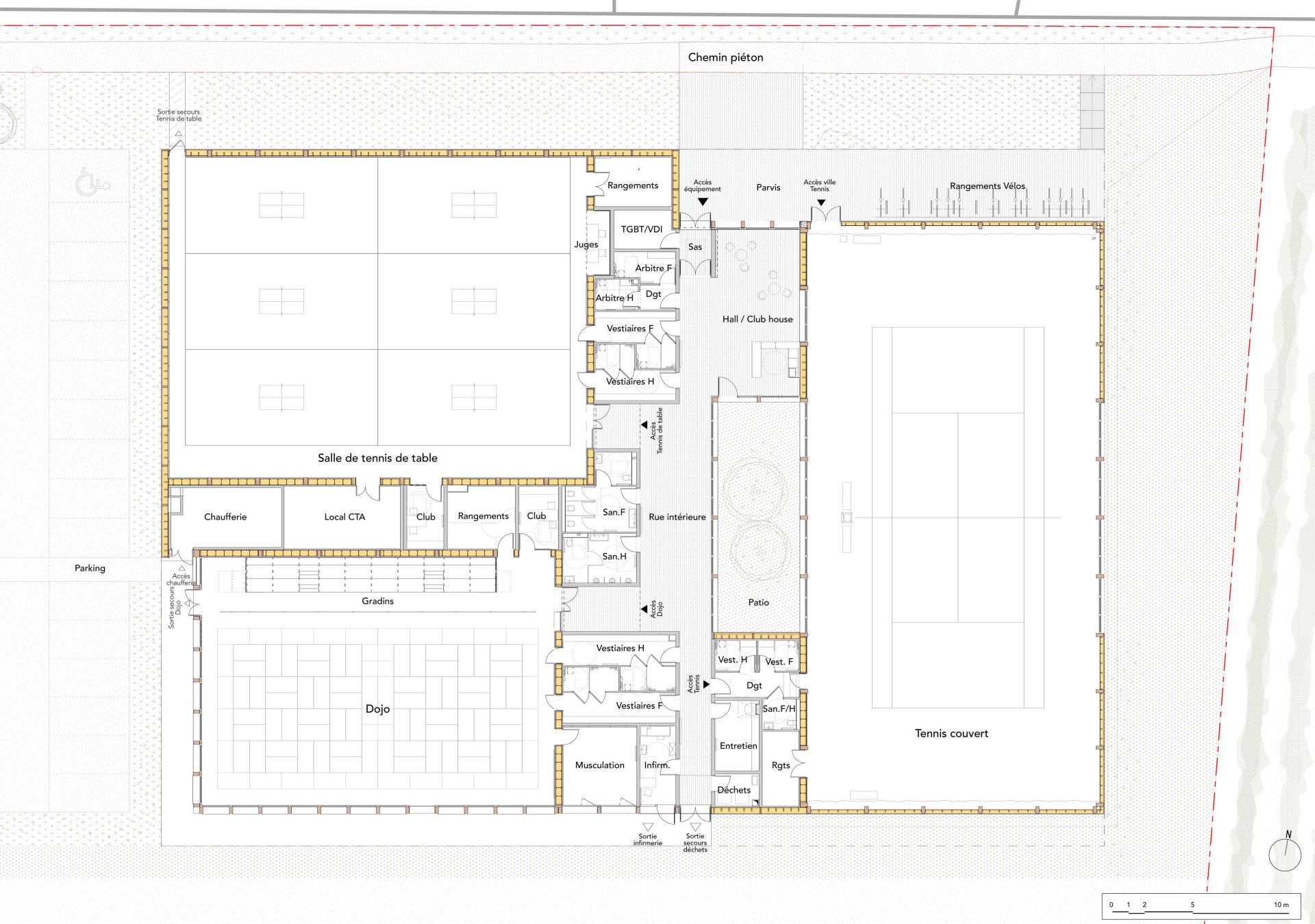
Le projet est pensé comme un bâtiment unique mais composé de trois entités : il s’adapte à l’échelle de son site en mettant en valeur chaque sport qu’il renferme dans un volume propre : tennis, judo et tennis de table. Les volumes sont connectés par une large toiture basse qui contient les espaces servants. Leur traitement de façade est fonction des usages : opaque, translucide ou transparent pour protéger, apporter une lumière tamisée, ou s’ouvrir sur le paysage au gré des besoins des sports et des orientations.
Pour répondre à l’objectif E3C2, la structure est réalisée en portiques bois et murs à ossature bois avec remplissage en bottes de paille et finition en enduit à la chaux. L’assemblage de ces trois éléments (bois-paille-chaux) ancre le bâtiment dans ce caractère rural propre à son site. Ces matériaux frugaux et traditionnels et à l’empreinte carbone faible (C) assurent une enveloppe performante pour une architecture bioclimatique raisonnée (E).
Ressource renouvelable et abondante, la paille de blé permet de répondre aux objectifs environnementaux élevés propres aux bâtiments de demain tout en valorisant une production agricole locale.
Equipement sportif à Parçay-Meslay - Photographie : Charles Bouchaïb
Equipement sportif à Parçay-Meslay - Photographie : Charles Bouchaïb
Equipement sportif à Parçay-Meslay - Photographie : Charles Bouchaïb
Equipement sportif à Parçay-Meslay - Photographie : Charles Bouchaïb
Equipement sportif à Parçay-Meslay - Photographie : Charles Bouchaïb
Equipement sportif à Parçay-Meslay - Photographie : Charles Bouchaïb
Equipement sportif à Parçay-Meslay - Photographie : Charles Bouchaïb
Equipement sportif à Parçay-Meslay - Photographie : Charles Bouchaïb
Equipement sportif à Parçay-Meslay - Photographie : Charles Bouchaïb
Equipement sportif à Parçay-Meslay - Photographie : Charles Bouchaïb
Equipement sportif à Parçay-Meslay
Equipement sportif à Parçay-Meslay - Plan de masse
Equipement sportif à Parçay-Meslay - Plan de rez-de-chaussée
Equipement sportif à Parçay-Meslay - Rapport à la lumière et au paysage